Skip to content
Početna
Projekti
Ured
Aktualno
Kontakt
Menu
Početna
Projekti
Ured
Aktualno
Kontakt
Obiteljska kuća Š
Lokacija
Dubrava - Zagreb
Godina
2024
Kategorija
Stanovanje
Status
Izvedbeni projekt
Klijent
Privatno
U Gornjoj Dubravi na počecima padina Medvednice smjestili smo obiteljsku kuću s bazenom. Prostrana kuća s podzemnom garažom i vanjskim bazenom na širokoj parceli zadržava orijentacijom i otvorima maksimalni intimitet.
Zatečeno stanje / IZVEDBA
Nacrti
Vizualizacija
PROJEKTANT
Juraj Luetić
PROJEKTANT SURADNIK
Saša Jungić
PROJEKTIRANJE
2024.-
OBUHVAT
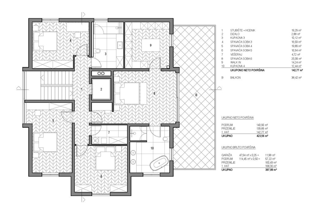
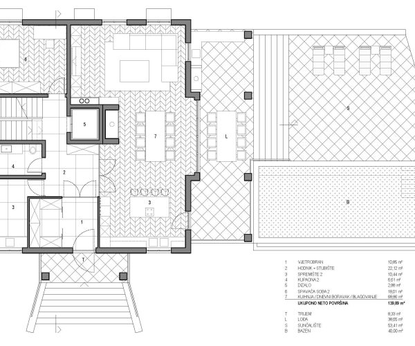
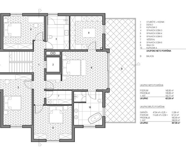
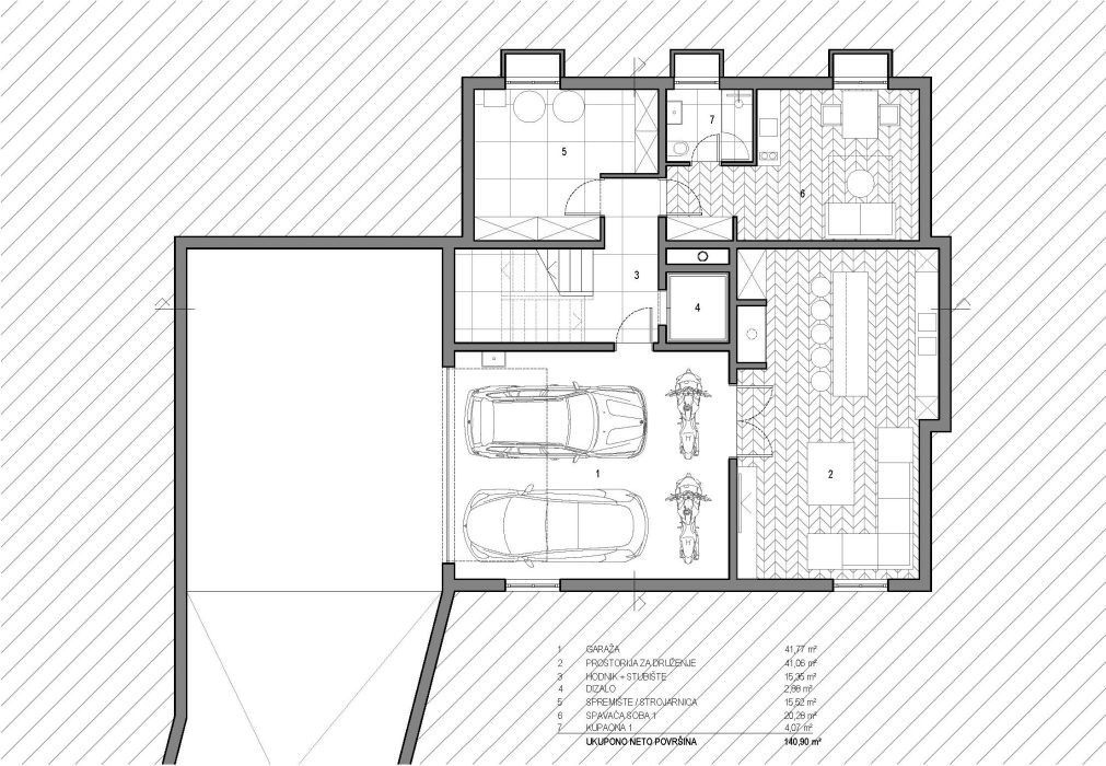
1422 m2
BRUTO POVRŠINA
398 m2
NETO POVRŠINA
423 m2
pogledajte
Projekti
Ured
Aktualno
ili dijelite
Još
projekata
Apartman “Viva”
Obiteljski stan “Č”
Obiteljska kuća “A”
Facebook
Instagram
KONTAKTIRAJTE NAS
+385/98-8561-78
jluetic@inter-comp.hr